简繁体
网站首页
首 页
魅力高新
资讯中心
信息公开
政务服务
互动交流
双招双引
重点项目
企业之窗
政务新媒体
您当前所在的位置是:
首页
>
资讯中心
>
通知公告
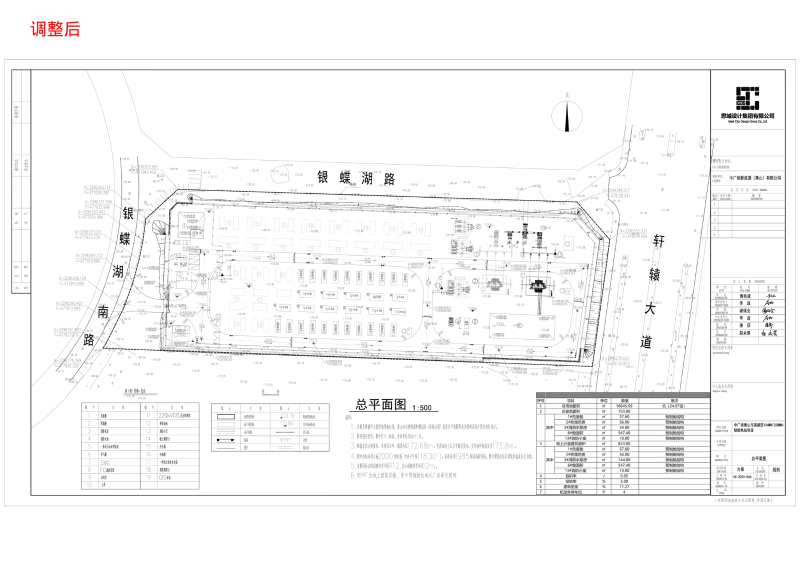
关于中广核黄山市高新区104MW/208MWh储能电站项目调整规划设计方案的公示
发布日期:2025-12-23 10:37
信息来源:高新区管委会
作者:高新区自然资源和规划分局
浏览量:
【字号:
大
中
小
】
我要纠错
收藏
扫一扫在手机打开当前页
打印本页
关闭窗口