关于多弗荣欣产业园A6#智能制造车间调整规划设计方案的公示
关于多弗荣欣产业园A6#智能制造车间调整规划设计方案的公示
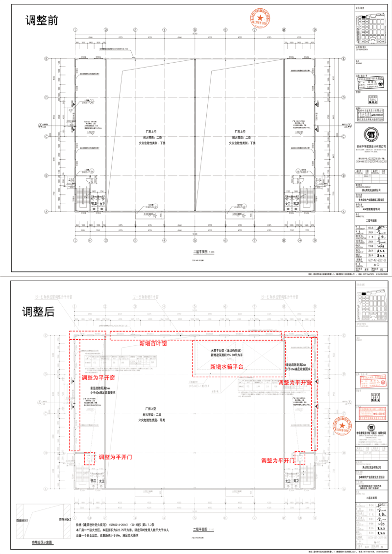
黄山市丽生共享智能科技有限责任公司于2025年4月A6#智能制造车间,根据该公司提出申请,现将多弗荣欣产业园A6#智能制造车间调整规划设计方案进行公示,调整如下:
1、A6#车间火灾危险性类别由“丁类”调整为“丙类”。
2、车间5-8轴交D-E轴处新增水箱平台架,建筑面积增加155.80平方米(具体详见附图)。
3、车间一层1-2轴交D-E轴处增加燃气蒸发器设备间以及相应防火门和泄爆窗(具体详见附图)。
4、车间一层取消原5E-5A轴隔墙,在2E-2A、8E-8A轴处增加挡烟垂壁(具体详见附图)。
5、9-1轴立面图(北侧立面)底标高5.1m处新增排烟百叶窗(具体详见附图)。
6、9-1轴立面图(北侧立面)二三层9-8轴及2-1轴推拉窗调整为平开窗、一层2-1轴推拉窗调整为泄爆窗(具体详见附图)。
7、1-9轴立面图(南侧立面)二三层1-2轴及8-9轴推拉窗调整为平开窗(具体详见附图)。
8、E-A轴立面图(西侧立面)、A-E轴立面图(东侧立面)二三层推拉窗调整为平开窗(具体详见附图)。
9、所有开向楼梯间疏散门由子母乙级防火门调整为平开乙级防火门,门高调整为2.2m(具体详见附图)。
以上调整方案于2025年12月30日通过房屋建筑和市政设施基础工程设计文件审查。A6#智能制造车间调整前建筑面积为2590.5㎡,计容面积为5098.50㎡;调整后,建筑面积为2746.30㎡,计容面积为5098.50㎡。
经我局审查,项目规划方案建筑布局、建筑间距、建筑退让以及非生产性建筑占地比等均符合相关法律法规的要求。根据城乡规划公开公示的规定,现将调整的建筑设计方案予以公示,如有意见和建议,请在公示期间与黄山市自然资源和规划局高新区分局联系。
公示时间:七个工作日[2026年2月2日至2026年2月10日]
联系人: 吴先生
联系电话:0559-2552011
公示地点:
1、拟建项目地块现场;
2、黄山市梅林大道50号高新区管委会大厅。




黄山市自然资源和规划局高新区分局
2026年2月2日

皖公网安备34100002000108号